Overview
| Price: |
$535,000 |
| Contract type: |
Sale |
| Type: |
Detached |
| Location: |
Barrie, Ontario |
| Bathrooms: |
2 |
| Bedrooms: |
3 |
| Total Sq/Ft: |
1100-1500 |
| Virtual tour: |
View virtual tour
|
| Open house: |
N/A |
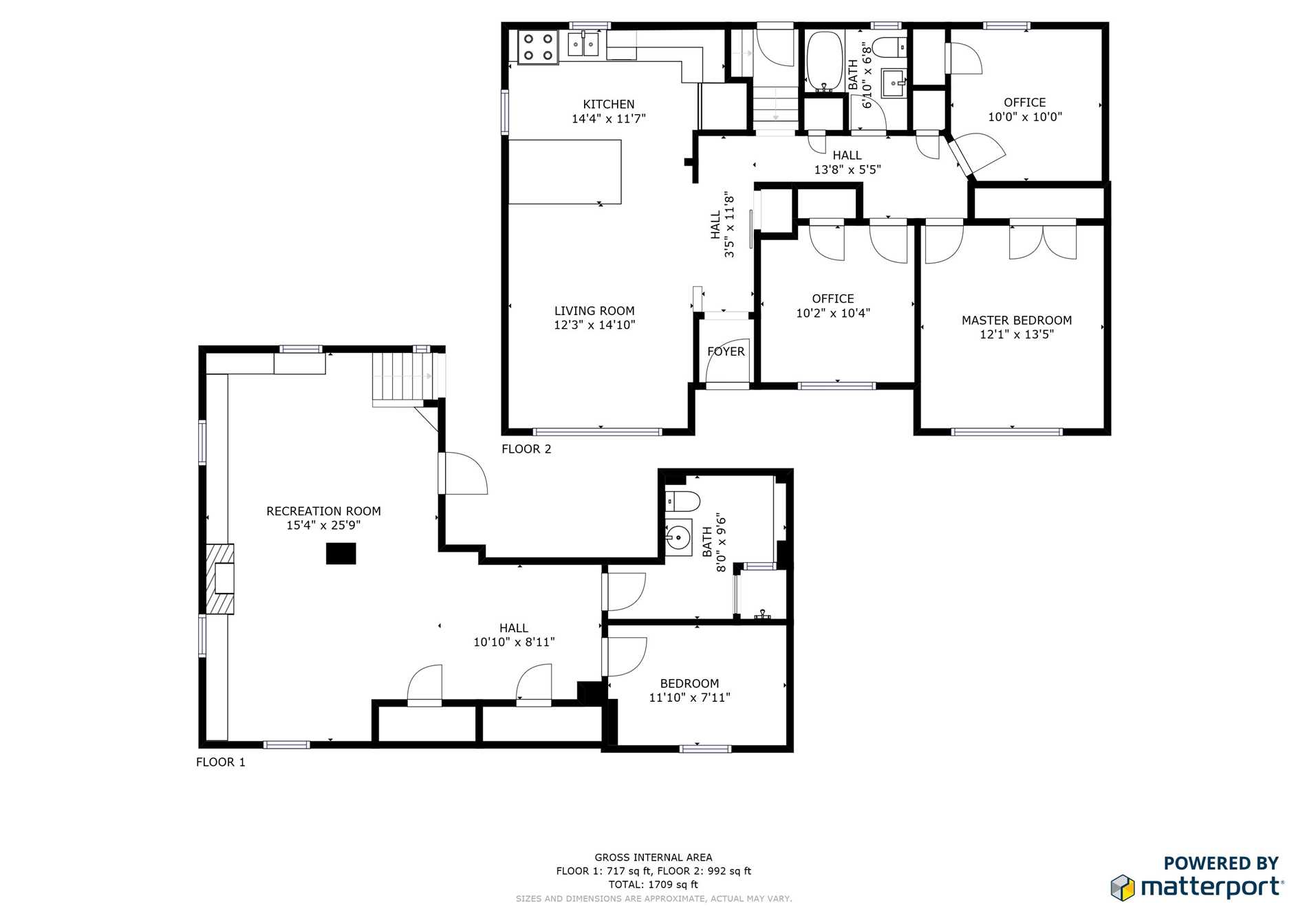
Spacious Bungalow On Mature Lot! Walk To Parks, Schools, Plazas, Short Drive To Shopping, Commuter Routes, All Amenities & The Sparkling Shores Of Lake Simcoe. This Home Features Modern Rustic Finishes, Stunning Washrooms, An Eat-In Kitchen With A Beautiful Backsplash & Newer Appliances, & A Beautifully Finished Basement, With Separate Entrance & Fireplace With Gorgeous Stone Surround. Visit Our Site For A 3D Interactive Tour. A Charming & Rustic #hometostay!
General amenities
-
All Inclusive
-
Air conditioning
-
Balcony
-
Cable TV
-
Ensuite Laundry
-
Fireplace
-
Furnished
-
Garage
-
Heating
-
Hydro
-
Parking
-
Pets
Rooms
| Level |
Type |
Dimensions |
| Main |
Living |
5.31m x 3.72m |
| Main |
Kitchen |
3.71m x 2.58m |
Map