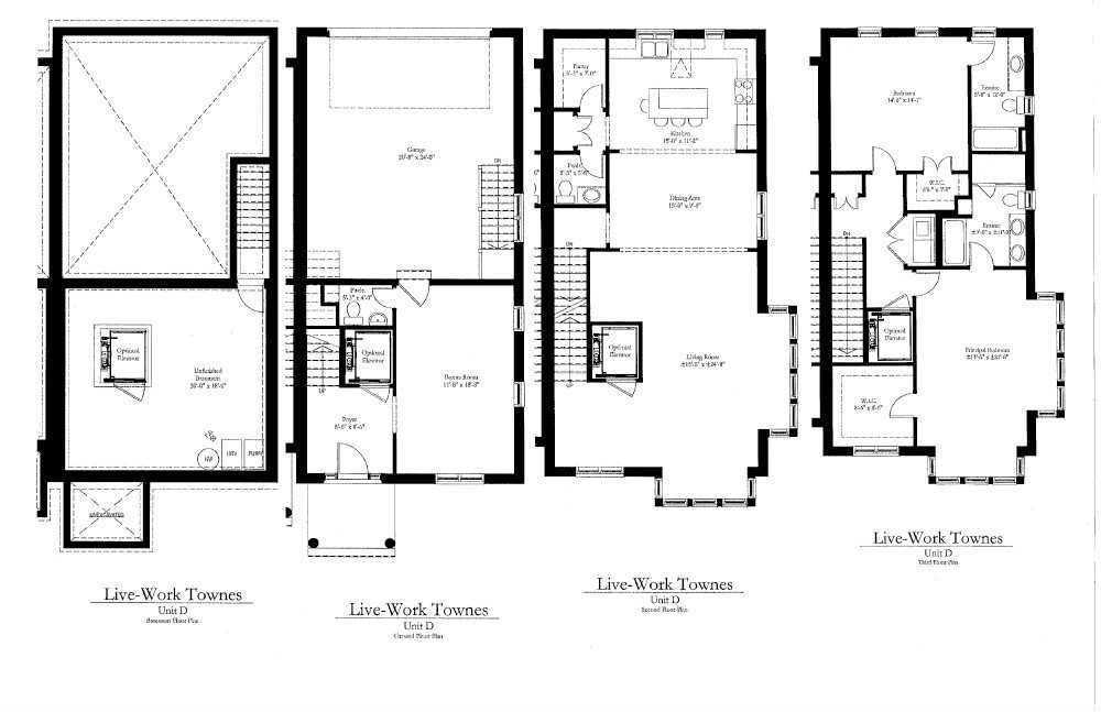
798 New Amherst
Overview
| Price: | $899,900 |
|---|---|
| Contract type: | Sale |
| Type: | Att/Row/Twnhouse |
| Location: | Cobourg, Ontario |
| Bathrooms: | 4 |
| Bedrooms: | 2 |
| Total Sq/Ft: | 2500-3000 |
| Virtual tour: | N/A |
| Open house: | N/A |
This Luxury Freehold 3-Storey Townhouse Offers 2 Bedroom With Plenty Of Of Luxurious Living Space With Stunning View Of New Amherst Village.
General amenities
- All Inclusive
- Air conditioning
- Balcony
- Cable TV
- Ensuite Laundry
- Fireplace
- Furnished
- Garage
- Heating
- Hydro
- Parking
- Pets
- Private Entrance
- Water
Rooms
| Level | Type | Dimensions |